



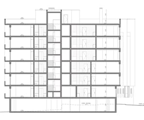
Edifício de habitação e comércio com sete pisos, três dos quais com três apartamentos cada um, e dois pisos com os restantes seis, num total de quinze apartamentos com tipologias T3 e T2, e uma loja no piso abaixo da cota de soleira.
Amora, Seixal
Edifício de habitação e comércio
Licenciamento












