

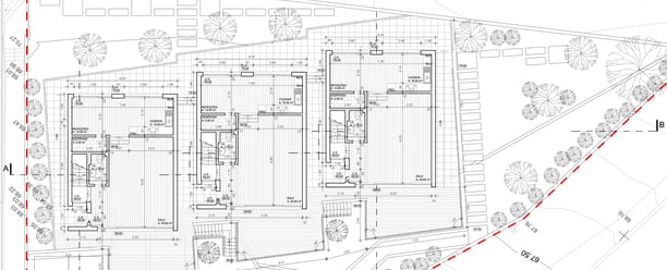
Condomínio de três moradias unifamiliares em banda, com dois pisos acima da cota de soleira, tipologia T4 com dois quartos, duas suítes, e dois lugares de estacionamento exteriores privativos. Os espaços comuns do condomínio são revestidos em ladrilhos de mosaico cerâmico e dão acesso a cada moradia e aos respectivos espaços verdes. O pavimento da área exterior de cada moradia é em deck de madeira e dá acesso à zona do estacionamento exterior através de escada e rampa.
Colares, Sintra
Condomínio habitacional
Licenciamento








